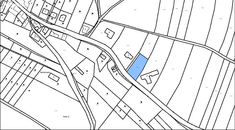
Toužíte po ideálním místě pro stavbu svého vysněného domova? Máme pro vás výjimečnou příležitost: nabízíme novostavbu rodinného domu v obci Štěpánov u Skutče. Tato malebná lokalita leží jen 2 minuty jízdy autem od města Skuteč, kde naleznete kompletní občanskou vybavenost, bohaté kulturní možnosti a celoroční sportovní aktivity.
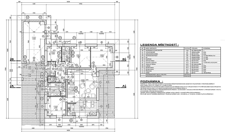
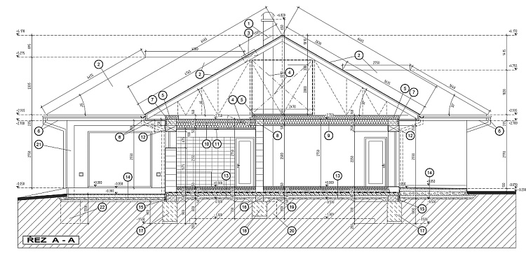
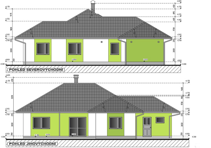
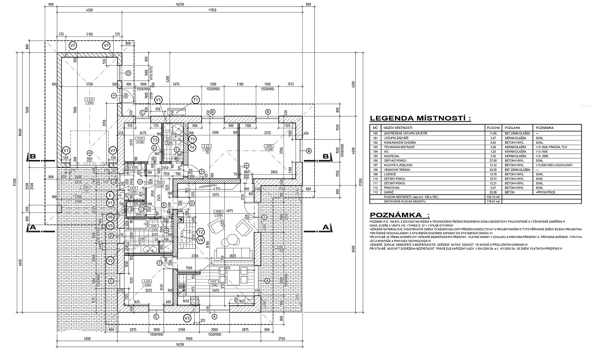
Dům je umístěn tak, že poskytuje nádherný výhled na město Skuteč a jeho okolí. Nemovitost je navržena jako 5+kk, což zahrnuje kuchyň s jídelnou, dva dětské pokoje, koupelnu, ložnici, obývací pokoj, samostatné WC a technickou místnost. K domu patří také garáž o rozloze 26 m² a venkovní terasa. Přilehlá zahrada nebo předzahrádka je ideální pro zahradničení nebo relaxaci.
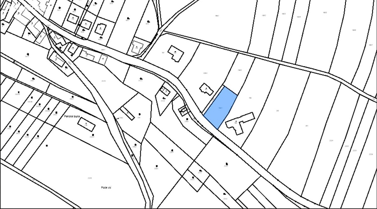
Zastavěná plocha domu je 179,8 m², z toho 132 m² tvoří obytné prostory. Celková plocha pozemku činí 1 165 m². Cena zahrnuje hrubou stavbu včetně pozemku. Podrobnější informace o možnostech dokončení stavby vám rádi poskytneme na uvedeném telefonním čísle.
Cena za kompletní výstavbu domu na klíč nezahrnuje: oplocení, krb či krbovou vložku, kuchyň, nábytek, kompletní zpevněné plochy, terénní úpravy včetně výsadby trávníku, příjezdovou komunikaci a závlahový systém.
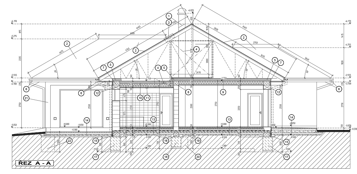
Technické údaje:
Pro zájemce s konkrétními požadavky nabízíme dvě alternativní varianty domu, které splňují původní parametry a již mají vydané stavební povolení. Tyto varianty jsou zobrazeny na přiložených obrázcích.
Kompletní výstavba domu na klíč (včetně změny projektové dokumentace a vyřízení změny stavebního povolení - 6,2 mil. včetně pozemku).
Kompletní výstavba hrubé stavby domu (4 mil. včetně pozemku).
Pro více informací o možnostech kompletního dokončení stavby a dalších detailech mě neváhejte kontaktovat na uvedeném telefonním čísle. Těším se na Vaše zavolání a rád Vám pomůžu přeměnit Váš sen o vlastním domě ve skutečnost.
Štěpánov je vesnice, část města Skuteč v okrese Chrudim. Nachází se asi 1,5 kilometru severně od Skutče. Prochází zde silnice II/305. Štěpánov leží v katastrálním území Štěpánov u Skutče o rozloze 3,92 km².
K roku 2022 zde bylo připsáno 173 žijících obyvatel a k roku 2011 79 domů.
Uprostřed návse je obecní studna- dříve byla využívána na soukromé hospodaření, jako zdroj vody pro hospod. zvířata. Od roku 1956 byl již zaveden vodovod. Hloubka studny je 9 m. Vyčištění a nástavba studny byla zhotovena k 650 let založení obce. Dnes se studeň již nevyužívá, ale vodu v ní nalezneme stále.
V blízkosti vsi, směrem na Zbožnov, jsou na výrazném terénním zlomu památné Tři lípy (stromy) s křížem, zdaleka viditelné, nedaleko nich je na nejvyšším vrcholu umístěn vodojem. Také se váže jedna pověst k místu nedaleko vodojemu.
Ke vsi také patří rozlehlejší rybník, nacházející se pod obcí, směrem na Skuteč - několikrát do roka zde na rybníce proběhnou rybářské závody. Od rybníka vede potok, který se stáčí do Anenského údolí. K rybníku je přilehlá tzv. bažantnice, dnes slouží tato budova jako hospoda a obytný dům.
Na Štěpánově se dříve konaly motokrosové závody, ještě dnes zde můžeme vidět motokrosovou dráhu.

telefon: +420 774 494 749
e-mail: skipala@pohoda-rk.cz
web: https://frantisekskipala.cz
facebook:
Kompletní nabídka nemovitostí realitní kanceláře