Hledáte parcelu pro výstavbu Vašeho nového domu? Ve výborné dojezdové vzdálenosti do města? Nabízíme Vám rovinatý, slunný, oplocený pozemek ve slepé ulici obce Hrušová, který se nachází pouhé 4 km od Vysokého Mýta. K dispozici je příjezdová cesta z ulice a veškeré inženýrské sítě (obecní voda, kanalizace a elektřina), které jsou na okraji pozemku. Výměra pozemku je 608 m².
Předností lokality je současná výstavba a budoucí napojení na D35. V místě je k dispozici MŠ, obchod potravin 7/24, restaurace, knihovna, vlaková i autobusová zastávka. Ve vedlejší obci vzdálené pouhé 2 km je ZŠ (I. a II. stupeň), lékař, pošta, restaurace, moderní koupaliště, velký vybavený sportovní areál atd. V blízkosti domu je cyklostezka spojující Vysoké Mýto a Litomyšl. Necelý 1 km od domu je také minizoo Harta. Dojezdová vzdálenost: Chrudim 35 km, Pardubice 41 km, Praha 154 km.
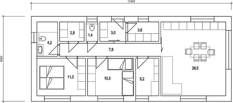
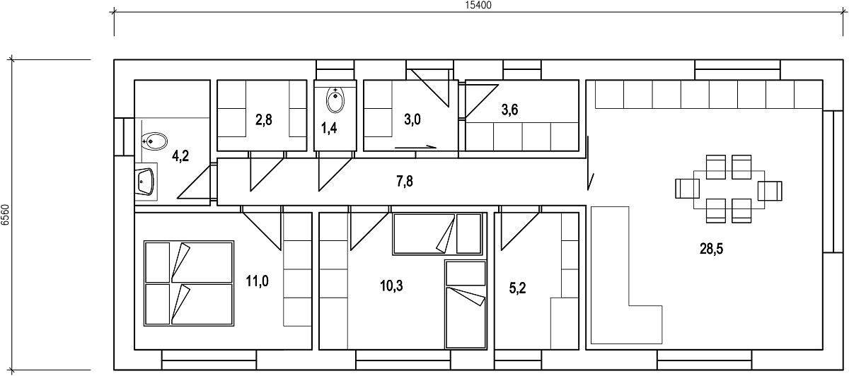
Dřevostavbu nebo zděný dům? Jako bonus Vám nabízíme možnost dodávky nízkoenergetického domu na klíč. Dodavatel stavby pro Vás připravil zajímavou vizualizaci. Profesionálně navržený dům na klíč nabízí prostorný obývací pokoj spojený s kuchyní, dva pokoje, pracovnu a příslušenství. Svou velikostí je tento dům ideální pro 4-člennou rodinu. Jeho výhodou je jednoduchý tvar a zastavěná plocha 102 m².
Nepropásněte jedinečnou příležitost postavit si dům svých snů v této zajímavé lokalitě.
Technické údaje:
Nemovitost je v osobním vlastnictví, proto v rámci našich služeb zájemci rádi zajistíme zdarma výhodné financování. U každého mé nemovitosti najdete samostatnou webovou stránku, profesionální fotografie, 3D půdorysy, videoprohlídku, videozáběry z dronu a virtuální prohlídku. V případě zájmu o prohlídku nebo více informací mě neváhejte kontaktovat.
Těším se na prohlídky s Vámi.
Hrušová je obec v okrese Ústí nad Orlicí v Pardubickém kraji. Rozkládá se ve Svitavské pahorkatině, v rovinaté krajině po levé straně řeky Loučné, zhruba 5 km jjv. od města Vysoké Mýto. Žije zde 403 obyvatel.
Prochází tudy silnice I/35 a železniční trať Choceň–Litomyšl se zastávkou Hrušová. První písemná zmínka o obci pochází z roku 1167.
Pamětihodnosti

telefon: +420 774 494 749
e-mail: skipala@pohoda-rk.cz
web: https://frantisekskipala.cz
facebook:
Kompletní nabídka nemovitostí realitní kanceláře