Prodej vícegeneračního rodinného domu se zahradou a s prostornými dílnami

Popis nemovitosti

Hledáte dům, který vyřeší samostatné bydlení pro prarodiče-rodiče-děti? Doby se mění, a především finanční situace a bytová nouze vrací v mnoha případech vícegenerační bydlení znovu jako jednu z možností, jak bydlet levněji a hned.

Nabízíme Vám ke koupi prostorný, částečně podsklepený rodinný dům s krásnou, udržovanou zahradou a se zajímavým technickým zázemím.

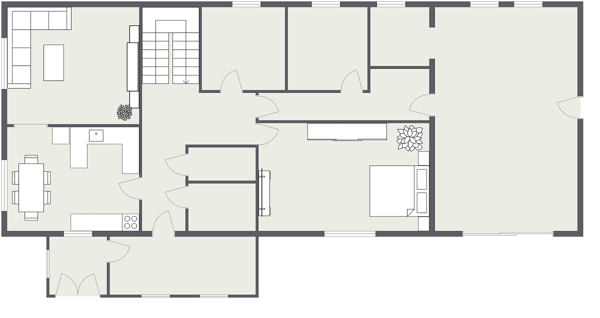
Rodinný dům má bytové dispozice 2+kk, 4+1 a 3+1. V přízemí se nachází bytová jednotka 2+kk, komora, spíž, prádelna a kotelna. Je zde také komerční část domu – velká místnost se zázemím pro zákazníky, tři dílny, velký sklad a kotelna. V 1.NP se nachází bytová jednotka 4+1 s prostornou terasou, chodba, koupelna, samostatná toaleta a spíž. V podkroví domu je atypická bytová jednotka 3+1 s klimatizací, chodba, koupelna, samostatná toaleta a komora.

Velkou předností je pečlivě udržovaná zahrada, kde nechybí jak krytý bazén, tak i krásná pergola s krbem a letní kuchyní. Je zde také dostatek prostoru pro pěstování ovoce a zeleniny. Vysoký plot vám zajistí odpočinek v naprostém soukromí. Dvůr vydlážděn žulovými kostkami a je zde dostatek místa pro parkování. Nechybí tu zkrátka vůbec nic.

Nenechte si ujít tuto zajímavou nabídku. Část vícegeneračního rodinného domu je možné využít nejen pro práci z home-officu, ale jako komerční prostory, ať už jde o kancelář pro setkávání s klienty, sklad, ordinaci nebo dílnu. Možnost přikoupit navazující stavební pozemek  o velikosti cca 630 m2 s přípojkou elektřiny na hranici pozemku a s čističkou odpadních vod za částku 1.950 000,- Kč.

Nákle je malá vesnice a část obce Klešice v okrese Chrudim. Veškerá občanská vybavenost je v cca 2,5 km vzdáleném Heřmanově Městci, kde je k dispozici MŠ i ZŠ, obchody, restaurace, autobusová zastávka, lékař, pošta, knihovna, sportovní areály atd. Dojezdová vzdálenost: Chrudim 13 km, Pardubice 16 km, Praha 100 km.

Technické údaje:

  • Plocha pozemku: 972 m2
  • Zastavěná plocha: 570 m2
  • Další části: dílny a další stavební pozemek 280m2
  • Počet NP: přízemí + 1NP + 2 NP
  • Vodovod: obecní voda
  • Elektroinstalace: 230/400 V
  • Odpad: septik
  • Střecha: sedlová, střešní krytina – pálené tašky
  • Vytápění: ÚT na tuhá paliva + plynový kotel + obývací pokoj krb

Nemovitost je v osobním vlastnictví, proto v rámci našich služeb zájemci rádi zajistíme zdarma výhodné financování. K této nemovitosti není ke dni zveřejnění inzerce zpracovaný energetický štítek, dle zákona je proto nemovitost dočasně do jeho předložení inzerována v energetické třídě G.

bytová jednotka
2+kk, 4+1 a 3+1
3 nadzemní
podlaží
celková plocha
pozemku 1 959 m²
zahrada o
výměře 1 283 m²
prostorné dílny, sklad a
zahrada s bazénem a pergolou
k bydlení
i k podnikání

Videoprohlídka domu

Videoprohlídka exteriéru

Třetí nadzemní podlaží

Virtuální prohlídka domu

Půdorys prvního nadzemního podlaží

Půdorys druhého nadzemního podlaží

Půdorys třetího nadzemního podlaží

Katastrální mapa

Něco málo o Nákli

Nákle je malá vesnice a část obce Klešice v okrese Chrudim. Nachází se asi dva kilometry západně od Klešic. Prochází zde silnice II/342. Nákle leží v katastrálním území Klešice o výměře 4,66 km².

První písemná zmínka o vesnici pochází z roku 1789.

Wikipedie

Cena: 9.830.000,- Kč

František Skipala

realitní specialista

telefon: +420 774 494 749
e-mail: skipala@pohoda-rk.cz
web: https://frantisekskipala.cz
facebook:

Kompletní nabídka nemovitostí realitní kanceláře

Souhlasím se zpracováním osobních údajů za účelem vyřízení odpovědi na daný dotaz.
Při poskytování služeb nám pomáhají soubory cookie. Používáním našich služeb s tím souhlasíte. Rozumím